11A Garden Street, South Perth
| 3 Beds | 3 Baths | 3 car spaces |
SOLD MORE HOMES NEEDED.
LUXURY, TRI-LEVEL, green titled family home with a LIFT in a prime location.
A beautifully architecturally deigned home with fabulous views of city and the Swan River.
Superbly located within walking distance of Sir James Mitchell Park, Foreshore, Angelo Cafe Strip and Wesley College.
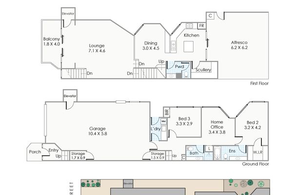
This home has three spacious levels sitting on its own green titled block.
Boasting 3 generous bedrooms, 2 bathrooms, home/office, separate powder room and with 2 living areas opening onto 2 balconies with views of the river for entertaining with family and friends especially on the magnificent events like the Perth Sky show night. The private balcony on the upper level is designed to capture the best of the north facing aspect.
This easy-care home has a lift so it can be your forever home
F E A T U R E S I N C L U D E S
- 3 bedrooms
- 2 bathrooms
- Two separate living areas
- Kitchen has granite bench tops
- Dining area
- Under cover alfresco for entertaining
- Study/home office
- Laundry
- Master bedroom with ensuite and spa
- Mini bar
- Two balconies
- Lift
- Three car garage
- Security cameras
- Solar panels
- Reticulation
- Ducted vacuum
A great opportunity to secure this stunning home in a prime location.



Do you own a home?
Prepare for profit. Download our top tips on how to get the highest and best price when selling.
Do you own a home?
Prepare for profit. Download our top tips on how to get the highest and best price when selling.